Warszawa Żoliborz, Włościańska
790 000,00 PLN
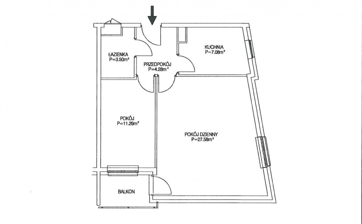
Mieszkanie na sprzedaż , 53,73 m2
14 703,15 PLN /m2
Powierzchnia
53,73 m2
Liczba pokoi
2

Dane nieruchomości:

Numer oferty: 34964534384
Powierzchnia: 53,73 m2
Liczba pokoi: 2
Piętro/Pięter 2 z 4
Balkon : 1
Cena za m2: 14 703,15 PLN
Cena: 790 000,00 PLN

Opis nieruchomości:

Na sprzedaż przestronne i słoneczne mieszkanie na Żoliborzu

Zapraszam do zapoznania się z ofertą dwupokojowego mieszkania przy ul. Włościańskiej 15!

To idealna propozycja dla osób ceniących przestrzeń, świetną komunikację oraz bliskość terenów zielonych. Mieszkanie jest jasne, narożne i ma bardzo funkcjonalny układ, dając wiele możliwości aranżacyjnych.

Najważniejsze informacje:
- Powierzchnia: 53,73 m²
- Liczba pokoi: 2
- Kuchnia: Oddzielna, z oknem
- Łazienka: Możliwość rozmieszczenia wanny

Ekspozycja okien:
Południowy zachód i południowy wschód - mieszkanie pełne naturalnego światła przez większość dnia!

Balkon:
Przestronna, niezabudowana loggia z widokiem na zieleń - idealne miejsce na poranną kawę czy odpoczynek po pracy.

Stan:
Do remontu - możliwość dostosowania wnętrza do swoich potrzeb!
Białe ściany stanowią wizualizację, aktualnie są słoneczno żółte :)

Budynek i udogodnienia:
- Mieszkanie znajduje się na 2. piętrze z 4 w budynku z 2009 roku.
- W dalszej perspektywie w planach budowa windy, która podniesie wartość nieruchomości o min. 30 000 zł, a także zwiększy komfort
- Bezpłatny parking naziemny z kartą mieszkańca.
- Możliwość dokupienia dwóch miejsc parkingowych w garażu podziemnym.

Lokalizacja - wszystko w zasięgu ręki!

Mieszkanie znajduje się w zielonej i doskonale skomunikowanej części Żoliborza.

Komunikacja:
Metro Marymont oraz przystanki tramwajowe i autobusowe w zasięgu 5-minutowego spaceru. Szybki dojazd do centrum - około 15 minut. W pobliżu również wjazd na S8, jednak mieszkanie pozostaje ciche.

Rekreacja:
Bliskość terenów zielonych: Glinianki Włościańskie, Park Olszyna, Park im. Zbigniewa Herberta - idealne miejsca na spacery, jogging czy odpoczynek.

Usługi i handel:
Galeria Żoliborz (Auchan, Rossmann, Pepco) - 280 m, Biedronka - 1 km, apteka - 450 m.

Pełna własność z Księgą Wieczystą - możliwość zakupu na kredyt. Nasz Doradca Kredytowy z chęcią pomoże przejść przez cały proces kredytowania bez stresu.

Cena: 790 000 zł

Czynsz administracyjny: 1090 zł/msc

Dodatkowe atuty:
Sprawdza się zarówno dla par, małej rodziny, jak i singla szukającego przestronnego mieszkania.

Nie przegap tej okazji!

Skontaktuj się z agentem :
Biuro INVESTOR

Telefon : 22 622 70 22

biuro@investor.waw.pl


Lokalizacja: